mail Contactez-nous
Accueil / Ventes / Terrains / Local commercial à vendre à Andernos-les-Bains – 106 m² avec terrasse privative
Local commercial à vendre à Andernos-les-Bains – 106 m² avec terrasse privative Local commercial à vendre à Andernos-les-Bains – 106 m² avec terrasse privative Local commercial à vendre à Andernos-les-Bains – 106 m² avec terrasse privative
Andernos

Local commercial à vendre à Andernos-les-Bains – 106 m² avec terrasse privative

404 496 € Honoraires à la charge de l'acquéreur
Réf : AP1-685

 

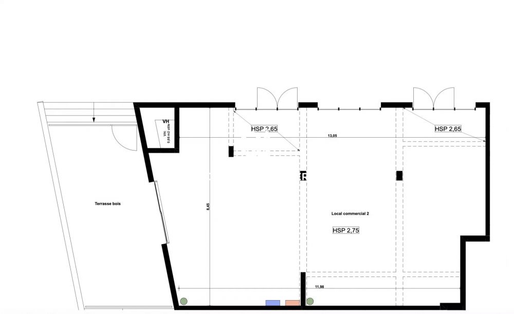
Coldwell Banker Immoba Realty, agence immobilière à Andernos, vous présente ce local commercial proposant une surface intérieure de 106 m², complétée par une terrasse privative de 30 m², offrant un cadre agréable pour accueillir votre clientèle ou développer votre activité.

Le local est livré brut, ce qui vous permettra d’aménager et d’optimiser l’espace selon vos besoins et votre concept. Cette flexibilité constitue un atout majeur pour créer un environnement parfaitement adapté à votre activité professionnelle.

Grâce à sa grande façade vitrée, ce local bénéficie d’une excellente luminosité naturelle et d’une visibilité optimale, idéale pour attirer les regards et maximiser l’impact visuel de votre enseigne.

Situé dans la dynamique commune d’Andernos-les-Bains, au cœur du Bassin d’Arcachon, ce local profite d’un environnement attractif et d’une fréquentation régulière, tant par les habitants que par les visiteurs. Cette localisation en fait une opportunité rare pour développer votre activité dans un secteur en pleine croissance.

Le bien n’est pas soumis au DPE. Pour obtenir davantage d’informations ou organiser une visite, contactez-nous.
Prix du bien: 404 496 € Frais d'agence inclus de 6% TTC soit 22 896 € TTC à la charge de l'acquéreur.
Prix net vendeur : 381 600 €

Fiche technique

Superficie 106 m²
Contact
/
  • Contactez-moi pour ce bien
  • En soumettant ce formulaire, j'accepte que les informations saisies soient traitées par Coldwell Banker Immoba Realty dans le cadre de la demande de contact et de la relation commerciale qui peut en découler.
    En savoir plus en consultant notre politique de respect de la vie privée* .